LABORATORY IN THE CENTER OF THE CANTON OF VAUD

Project Information

Client: Surface: 7200 m²
Date: Volume: 26’280 m³
Status: Programme: Laboratory
Location: Vaud Realization: C.C. & W.K. SA
Budget: Phase:

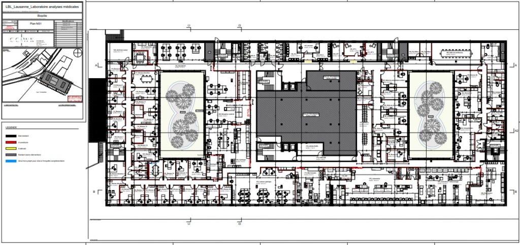
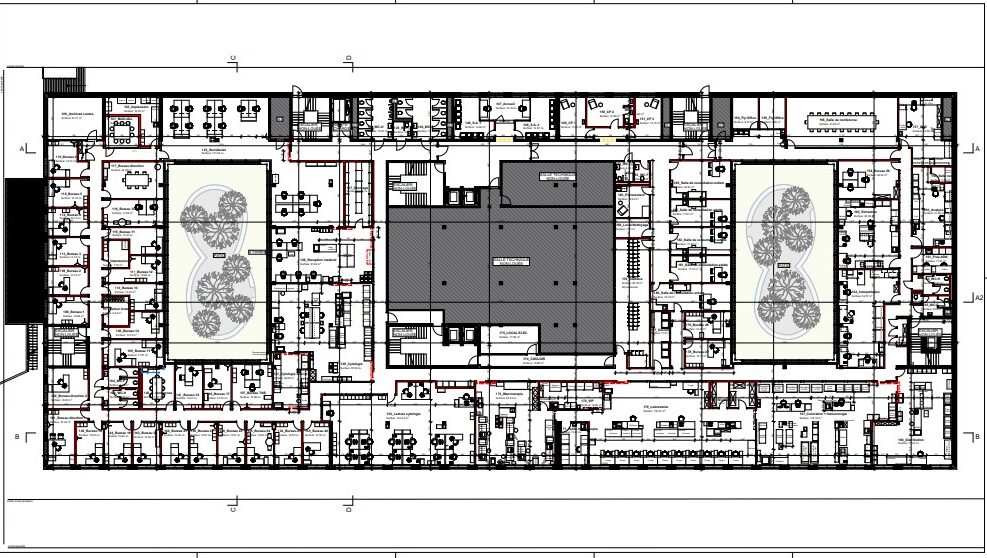
As an architecture and construction management firm, we played a central role in the creation of a laboratory in the center of the canton of Vaud, an ambitious and strategic project. Our team handled the planning, coordination, and rigorous monitoring of the work to ensure that it was carried out in accordance with the client’s expectations, quality standards, and deadlines.

In December, we completed the first of three floors, a key milestone that enabled production activities to begin. This level was designed with modern infrastructure tailored to the specific needs of users, meeting high standards in terms of functionality and aesthetics.

This project illustrates our ability to carry out complex work while ensuring smooth collaboration with all stakeholders, thereby contributing to the success of a major innovation site.

Project Gallery

Related Projects