This Geneva-based laboratory is undergoing a complete renovation aimed at improving the organization, performance, and comfort of its workspaces. The project is redefining each area while incorporating a major technical and energy upgrade to provide a functional, consistent, and sustainable environment.
The work includes complete thermal insulation of the walls and slabs, ensuring better energy performance and enhanced interior comfort.
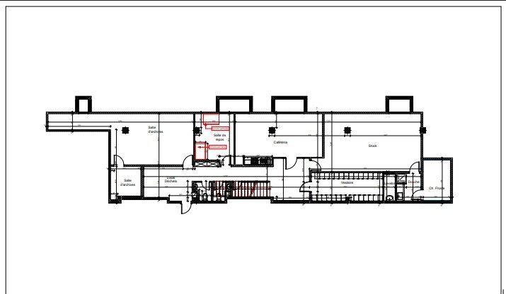
The renovations affect all areas:
- A serology area
- Offices
- A sampling room
- Storage areas
- A cafeteria and changing rooms
- Waste and archive rooms
The overall project aims to ensure smooth traffic flow, optimized flow management, and rational use of each space, while meeting current standards for energy efficiency and thermal comfort.
The result is a modern, high-performance, and sustainable laboratory focused on efficiency and well-being in everyday work.


